Imagine 98

Zona Craiovei - Spațiu comercial / birou / showroom de închiriat

ID: P235197 Pitesti, Craiovei 38
11€ + TVA/mp
Descriere
Se oferă spre închiriere spațiu comercial situat în zona Craiovei, într-o locație cu vizibilitate foarte bună, atât din trafic auto, cât și pietonal, aspect ce îl recomandă pentru activități comerciale sau de birou.
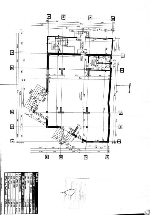
Spațiul are o suprafață de aproximativ 140 mp, este open space, permițând compartimentarea facilă în funcție de necesitățile viitorului chiriaș. Beneficiază de acces facil, precum și de locuri de parcare disponibile în curte, un avantaj important pentru angajați și clienți.

Imobilul este potrivit pentru:
Birouri
Showroom
Magazin de prezentare
Cabinete sau alte activități comerciale

Preț chirie: 11 euro / mp + TVA
Disponibilitate: liber, cu posibilitate de ocupare imediată
Caracteristici
  • ID:P235197
  • Nr. camere:1
  • S. utila:140.00 mp
  • Comp.:Open space
  • Nr. bai:1
  • Nr. parcari:2
  • Structura rezistenta:Caramida
  • Tip imobil:Casa/Vila
  • Regim inaltime:P+1
Specificatii
Curent
Apa
Canalizare
Gaz
Acces internet
Fibra optica
Centrala proprie
Aer conditionat
Gresie
Apometre
Contor caldura
Contor gaz
Localizare
George Tabarca
Esti interesat de aceasta proprietate ?