Imagine 98

Hala industrială de vânzare – Calea Câmpulung (Pitești–Mioveni)

ID: P235309 Pitesti, Exterior Nord 247
250.000€ + TVA
Descriere
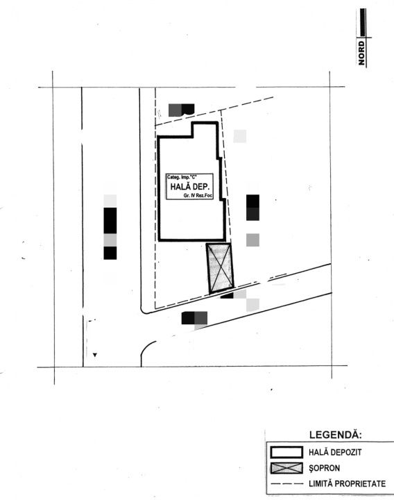
Se oferă spre vânzare un imobil compus din teren în suprafață de 790 mp și hală industrială cu suprafață construită la sol de 430 mp, amplasat într-o zonă cu acces rapid și vizibilitate bună, pe Calea Câmpulung, ruta Pitești – Mioveni.

Caracteristici construcție:
Structură realizată din panouri sandwich de 6 cm
Acoperiș din panouri sandwich de 8 cm, cu pantă dublă de 25%

Înălțime la cornișă: 3,30 m
Înălțime la coamă: 5,80 m
Spațiu generos, pretabil pentru producție, depozitare sau activități logistice

Utilități:
Gaze naturale
Energie electrică trifazică (380V)
Apă
Canalizare
Încălzirea halei se face prin centrală termică pe gaz

Acces și logistică:
Acces facil pentru aprovizionare:
autovehicule de până la 3,5 tone
7,5 tone
TIR
Acces direct din drum asfaltat

Localizare:
Zona Calea Câmpulung
Axă rutieră Pitești – Mioveni
Acces rapid către principalele artere de circulație

Pretabil pentru:
Producție
Depozitare
Logistică
Activități comerciale sau industriale
Caracteristici
  • ID:P235309
  • Nr. camere:5
  • S. utila:413.00 mp
  • S. curte:790.00 mp
  • Comp.:Flexibil
  • Nr. bai:2
  • Nr. parcari:4
  • An constructie:2006
  • Structura rezistenta:Altele
  • Inaltime:5.80 m
Specificatii
Apa
Canalizare
Gaz
Curent trifazic
CATV
Telefon
Centrala proprie
Calorifere
Curte
Localizare
George Tabarca
Esti interesat de aceasta proprietate ?